一、光伏板陽光房如何安裝
光伏板陽光房安裝方法如下:
1、備案要找正規授權公司辦理固定資產投資項目備案證,否則屬于違建會被依法拆除;
2、設計方案,要專業人員上門測量屋頂,出施工圖效果圖鋼結構圖,防止施工不規范,偷工減料;
3、光伏選用的立柱要使用不生銹的熱鍍鋅方鋼,像這樣的100*100mm長寬,2.5mm厚的熱鍍鋅方鋼就是很好的選擇,避免大風造成安全事故;
4、光伏瓦的材料選擇一定要選擇高功率的晶硅電池片,發電效率比傳統的薄膜發電高出3倍以上,像這種深藍色的電池片就是晶硅材料,每平每年可以發電200度左右;
5、防水設計,沒有使用這種打膠防水的,而;是加了500米的費用,做了這種專利防水技術鋁合金邊框一體成型的光伏瓦,結構式防水不打一滴膠,終生滴水不漏
6、逆變器沒有選擇二線品牌,售后沒有保障,容易產生危險,而是選擇了一線可靠的固德威品牌,噪音小,沒有輻射,轉化率高,發的電經過轉化可以直接供家里電器使用,空調,電暖氣,冰箱都可以帶動。
二、光伏板陽光房安裝方法
按照一般光伏項目的建設流程,首先要收集項目的接入條件、氣候條件、周邊環境、屋頂條件等信息,根據結果進行系統設計,固德威太陽能學院之前已經分享了一些前期開發、系統設計等文檔,這里不再贅述。
1、光伏陽光房項目前期勘查
開發過程中確認項目接入、氣候、環境及屋頂等條件滿足需求后,可以通過人工測量或者無人機等方式確認屋頂尺寸及組件排布。
2、需要確認的屋頂尺寸

其中a,b,c分別為可用部分長度、寬度和墻面高度,根據數據得出陽光房面的角度,并確認可行性。
3、光伏陽光房支架設計
根據前期勘探結果,確認光伏支架的材料和安裝形式。常見基于構件式光伏瓦的陽光房項目中,支撐支架一般選擇不銹鋼矩形管,即前立柱與頂部采用不銹鋼矩形管,封面與斷橋鋁門框相結合。
根據屋面與陽臺測量尺寸信息,確認組件排布數量,并確認支架立柱與檁條方案。
組件平面布置圖

檁條布置圖

立柱軸網布置圖

4、考慮光伏陽光房建成后的功能,需要與客戶確認陽光房前立柱的最矮高度,一般情況下不低于2.2米,同時由于構件式光伏瓦靠結構進行防水,最低的傾角不能低于10°。
組件立面布置圖

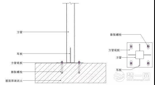
5、光伏支架安裝固定
根據前期設計圖紙,準確確認前立柱的位置,并用膨脹螺絲或其他安裝方法將前立柱與屋面進行固定。
根據前期設計圖紙和前立柱的位置,確認后立柱的位置,確保前后立柱水平工整,并用同樣的方式進行固定。
根據圖紙和立柱,安裝斜梁和檁條,一般采用焊接的方式,也可以采用螺栓緊固。
支架安裝方式及效果圖


6、光伏組件安裝及防水注意事項
構件式光伏瓦與檁條的安裝方式與常規組件安裝方式有一些差別,主要區別的地方為使用配套的導軌,同時如下圖箭頭所示,導軌與光伏瓦的連接部分為掛鉤安裝,不需要固定。
光伏瓦固定

光伏陽光房的防水性能是用戶關心最多的問題,如何確保光伏陽光房在長期使用過程中不出現漏水問題成為設備廠家、設計廠家和安裝廠家一直關注的地方。文檔介紹的構件式光伏瓦,在防水性能上的表現可以分為三個部分:
(1)、左右光伏瓦之間的配合
左右光伏瓦之間的配合、
構件式光伏瓦采用左右配合搭接的方式來防水,并且在搭接處設計了多道導流槽,可以將滲入的雨水快速排出,起到左右防水的作用。
(2)、上下光伏瓦之間的配合
上下光伏瓦之間的配合

(3)、光伏瓦底部防反向滲水
光伏瓦底部防反向滲水



